Wir freuen uns auf Ihren Anruf
0931 88065060

Logo Viefhaus

Unsere Angebote aus dem Bereich Gewerbe

  ‹ zurück zur Übersicht

Moderne, klimatisierte Büroräume (ca. 138m²)

97080 Würzburg Eine vollständige Adresse erhalten Sie
nach dem Absenden Ihrer Anfrage.
Anfrage senden Viefhaus Immobilien Würzburg
+ weitere Bilder
  • ca. 138 m²
  • Zentralheizung
  • DV-Verkabelung
  • nein
  • 1.380,00 EUR
  • 220,00 EUR
  • ja
  • 27,00 EUR
  • 2.760,00 EUR

 

Beschreibung im Detail

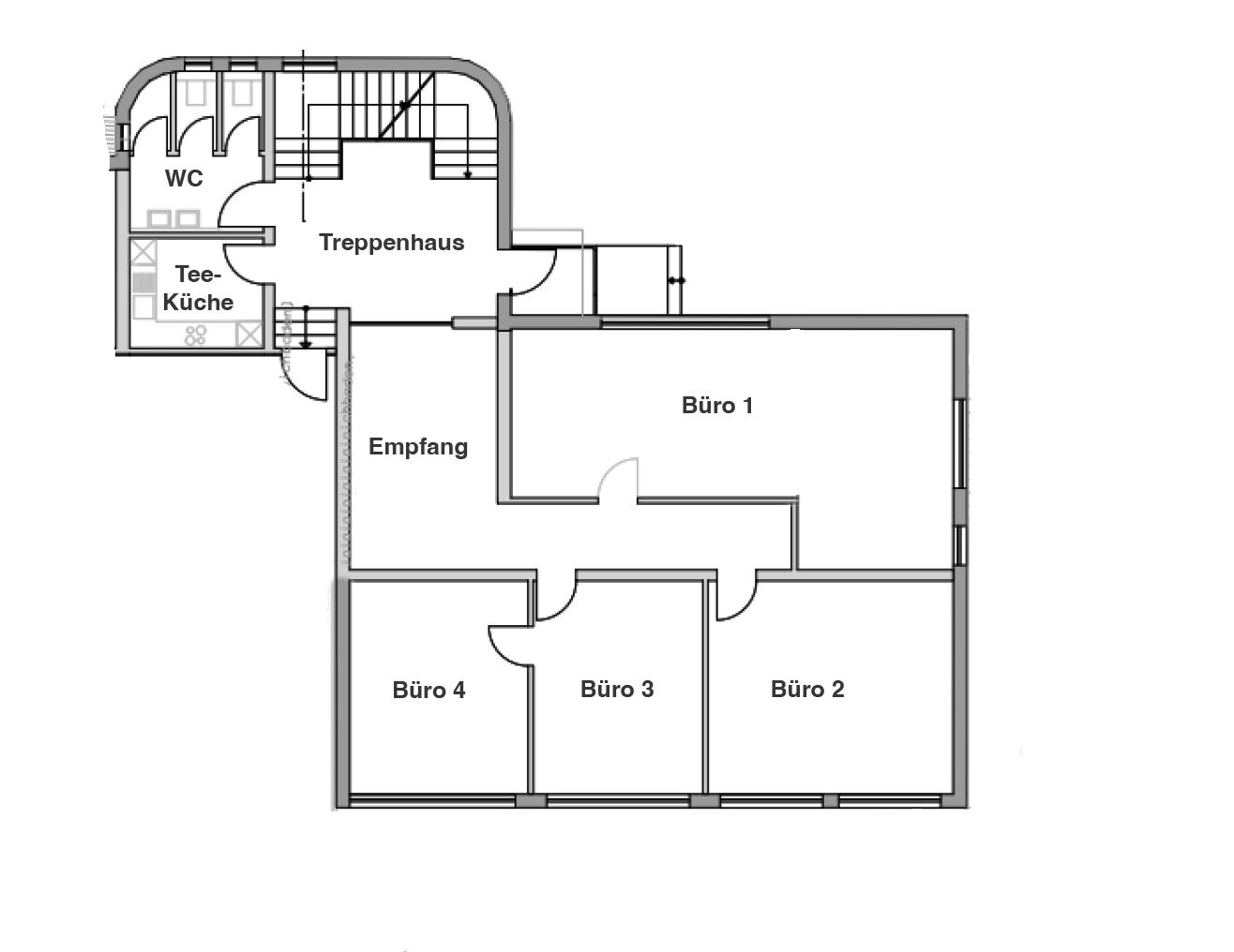
Helle Büroräume im Erdgeschoß eines Bürohauses:

4 geräumige Einzelbüros
Serverraum
Teeküche (zur Mietbenutzung mit einer 2. Büroeinheit)
WC (zur Mietbenutzung mit einer 2. Büroeinheit)
PkW-Stellplätze anmietbar (à 27,-€)
auch mit E-Ladefunktion
Carport anmietbar (38,-€)


Das Bürohaus wird auch von aussen komplett saniert.
Reinigungsservice + weitere Dienstleistungen möglich

Bezug ab sofort möglich

Glasfaseranschluß wird demnächst im Gebäude verlegt!

Beschreibung der Lage

Das Gewerbegebiet Veitshöchheimer Straße liegt im nördlichen Stadtbereich von Würzburg und zählt zu den etablierten und vielseitig genutzten Gewerbestandorten der Stadt. Es überzeugt durch seine zentrale Lage und hervorragende verkehrstechnische Anbindung, die eine ideale Erreichbarkeit gewährleistet.

Verkehrsanbindung

• Straßenverkehr: Das Gebiet ist direkt an die Bundesstraße B27 angebunden, die eine schnelle Verbindung in die Innenstadt sowie zu den Autobahnen A3 (Frankfurt-Nürnberg) und A7 (Kassel-Ulm) bietet.
• Öffentlicher Nahverkehr: Straßenbahn- und Bushaltestellen befinden sich in unmittelbarer Nähe und sorgen für eine bequeme Anreise für Mitarbeiter und Kunden.
• Schienenverkehr: Der Hauptbahnhof Würzburg ist nur wenige Minuten entfernt und ermöglicht optimale Verbindungen im Nah- und Fernverkehr.

Umfeld und Infrastruktur

Das Gewerbegebiet ist geprägt von einer Mischung aus mittelständischen Unternehmen, Einzelhandel, Dienstleistern sowie Handwerksbetrieben. In der unmittelbaren Umgebung finden sich zahlreiche gastronomische Angebote, Einkaufsmöglichkeiten und Versorgungseinrichtungen, die den Standort zusätzlich attraktiv machen.

Wirtschaftlicher Standort

Würzburg, als wirtschaftliches und kulturelles Zentrum der Region Mainfranken, bietet mit seiner starken Infrastruktur und Hochschullandschaft ein dynamisches Umfeld für Unternehmen. Der Standort an der Veitshöchheimer Straße ermöglicht eine ideale Positionierung in einem aktiven Wirtschaftsraum mit hoher Kundenfrequenz und stabiler Nachfrage.

Dieses Gewerbegebiet bietet optimale Voraussetzungen für Unternehmen, die Wert auf eine zentrale Lage, gute Erreichbarkeit und eine attraktive Umgebung legen.

Beschreibung der Ausstattung

Die Bürofläche wurde in den letzten Jahren komplett kernsaniert:

* neue Fenster
* neue Böden (Vinylboden)
* neue Elektro- und DV-Verkabelun
+ neue Toiletten
* neue Heizung und Klimatisierung

Beschreibung der Preisgestaltung

Nettokaltmiete: 1380,-€ zzgl. MwSt.
NK: 220,-€ zzgl. MwSt.
Kaution (2 Nettokaltmieten): 2760,-€

Details zur Provision

3 Nettokaltmieten zzgl. MwSt. für den Mieter

Weitere Informationen

Der Energieausweis wird momentan erstellt und nachgereicht.


Für weitere Auskünfte und zur Absprache eines Besichtigungstermins stehen wir Ihnen gerne zur Verfügung.

Viele weitere gewerbliche Immobilien im Angebot:

Büros von 50m² - 4000m² im Stadtgebiet Würzburg und den Gewerbegebieten
Produktions- und Lagerhallen von 100m² - 10.000m²
Gewerbegrundstücke
Gastronomie
Anlageobjekte

Besuchen Sie unsere Interseiten: www.viefhaus-immobilien.de
oder rufen Sie uns an: 0931-88065060

Alle Angaben unverbindlich ohne Gewähr (Informationen sind vom Eigentümer). Unsere Geschäftsbedingungen sind Angebotsgrundlage.

Ihr Ansprechpartner

 

Sebastian Viefhaus

Tel.:0931-88065060
Fax:0931-88065062

E-Mail:sv@viefhaus-immobilien.de

Anfrage senden

 

Mit einem * gekennzeichnete Felder sind Pflichtangaben.

Leistungen für Gewerbetreibende

Möchten Sie ein Gewerbe eröffnen und suchen noch das passende Objekt in Ihrer Nähe? Wir beraten Sie gerne und vermitteln Ihnen Gewerbe- und Gastronomieobjekte in jeder Größenordnung.

 

Wir begleiten Sie von Anfang an mit Weitsicht und Kompetenz: von der Objektbewertung über die Verhandlungsgespräche und das Einholen aller nötigen Unterlagen bis hin zur Unterzeichnung des Kauf- oder Mietvertrags. Sprechen Sie mit unseren Spezialisten und finden Sie die Traumimmobilie für Ihren Geschäftserfolg!

Viefhaus Immobilien
Fichtestraße 10
97074 Würzburg

 

Tel.:0931 88065060
Fax:0931 88065062

 

info@viefhaus-immobilien.de

 

Whatsapp Instagram LinkedIn Facebook X Youtube