Wir freuen uns auf Ihren Anruf
0931 88065060

Logo Viefhaus

Unsere Angebote aus dem Bereich Gewerbe

  ‹ zurück zur Übersicht

!! VERMIETET !! Moderne Gewerbefläche für Büro, Praxis oder Studio – zentrale Lage in Würzburg-Sanderau

97072 Würzburg (Sanderau) Eine vollständige Adresse erhalten Sie
nach dem Absenden Ihrer Anfrage.
Anfrage senden Viefhaus Immobilien Würzburg
+ weitere Bilder
  • ca. 235 m²
  • 1958
  • Gewerbe
  • ja
  • B
  • 24.07.2014
  • 23.07.2024
  • nach Verbrauch
  • ca. 69 kWh/(m²a)
  • nein
  • 2.000,00 EUR
  • 350,00 EUR
  • ja

 

Beschreibung im Detail

Diese großzügige und flexibel nutzbare Gewerbefläche befindet sich in verkehrsgünstiger Lage im beliebten Würzburger Stadtteil Sanderau.
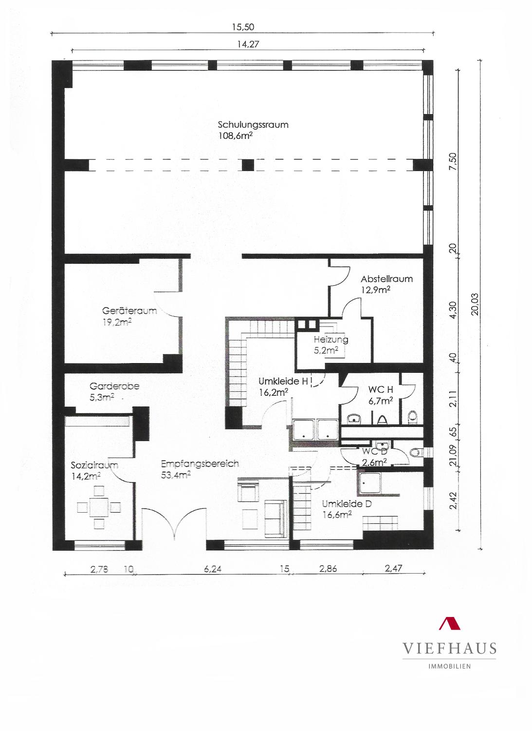
Auf rund 235 m² Nutzfläche bietet das Objekt ideale Voraussetzungen für unterschiedlichste Nutzungskonzepte – ob Büro, Studio, Praxis, Werkstatt mit Büroanteil oder Lager mit Verkaufsfläche.

Die Einheit überzeugt durch einen durchdachten Grundriss mit einem großen, offenen Hauptraum (ca. 108 m²), einem repräsentativen Empfangsbereich, mehreren Nebenräumen sowie getrennten Sanitäreinrichtungen (Damen, Herren, barrierefrei).
Dank der vorhandenen Umkleiden, Sozialräume und Abstellflächen eignet sich die Immobilie auch hervorragend für Schulungszwecke, Yoga oder Therapieangebote oder ähnliches.

Der gepflegte Zustand, die hochwertigen Bodenbeläge, moderne Beleuchtung, Klimatisierung und die großzügige Fensterfront mit Tageslicht sorgen für ein angenehmes Arbeitsumfeld.
Drei Parkplätze direkt vor dem Gebäude sind im Mietpreis enthalten.

Ein Bezug ist ab sofort möglich.

Beschreibung der Lage

Die Immobilie befindet sich in zentraler, aber ruhiger Lage im Würzburger Stadtteil Sanderau, nur wenige Minuten von Innenstadt, Mainufer und Ringpark entfernt.
Das Umfeld ist geprägt von einer Mischung aus Wohn- und Gewerbebauten sowie einer sehr guten Infrastruktur mit zahlreichen Einkaufsmöglichkeiten, Restaurants, Ärzten und Dienstleistern in fußläufiger Entfernung.

Die verkehrstechnische Anbindung ist hervorragend: Bus- und Straßenbahnhaltestellen befinden sich in direkter Nähe, die Würzburger Innenstadt ist in wenigen Minuten erreichbar.
Über den Rottendorfer und Heidingsfelder Zubringer besteht eine schnelle Anbindung an die Autobahnen A3, A7 und A81. Auch Parkmöglichkeiten im Umfeld sind ausreichend vorhanden.

Beschreibung der Ausstattung

Ausstattung
• ca. 235 m² Gesamtfläche
• große, helle Hauptfläche (Schulungs-/Studio-/Bürobereich)
• Empfangsbereich mit Wartezone
• Sozialraum mit Küchenanschluss
• Umkleiden Damen und Herren
• WC-Anlagen getrennt, inkl. barrierefreiem WC
• Abstellräume und Technikraum
• Klimaanlage und Sonnenschutz
• moderne Beleuchtung
• 3 Pkw-Stellplätze direkt vor dem Eingang inklusive
• Bezug: ab sofort

Beschreibung der Preisgestaltung

Konditionen

• Kaltmiete: 2000,-€
• Nebenkostenvorauszahlung: 350,-€
• Kaution: 2 Monatskaltmieten
• Bezug: ab sofort
• Mietdauer: nach Vereinbarung

Details zur Provision

Für den Mieter fällt eine Provision in Höhe von 3 Nettokaltmieten zzgl. der gesetzlichen Mehrwertsteuer an.
Die Provision ist verdient und fällig mit Abschluss des Mietvertrages.

Weitere Informationen

Alle Angaben stammen vom Eigentümer. Für die Richtigkeit und Vollständigkeit wird keine Haftung übernommen.
Das Angebot ist freibleibend. Änderungen, Irrtümer und Zwischenvermietung bleiben vorbehalten.
Bei Interesse bitten wir um eine schriftliche Anfrage mit vollständigen Kontaktdaten (inkl. Telefonnummer), um weitere Informationen zu erhalten oder einen Besichtigungstermin zu vereinbaren.

Ihr Ansprechpartner

 

Thomas Meister

Tel.:0931-88065061
Fax:0931-88065062

E-Mail:tm@viefhaus-immobilien.de

Anfrage senden

 

Mit einem * gekennzeichnete Felder sind Pflichtangaben.

Leistungen für Gewerbetreibende

Möchten Sie ein Gewerbe eröffnen und suchen noch das passende Objekt in Ihrer Nähe? Wir beraten Sie gerne und vermitteln Ihnen Gewerbe- und Gastronomieobjekte in jeder Größenordnung.

 

Wir begleiten Sie von Anfang an mit Weitsicht und Kompetenz: von der Objektbewertung über die Verhandlungsgespräche und das Einholen aller nötigen Unterlagen bis hin zur Unterzeichnung des Kauf- oder Mietvertrags. Sprechen Sie mit unseren Spezialisten und finden Sie die Traumimmobilie für Ihren Geschäftserfolg!

Viefhaus Immobilien
Fichtestraße 10
97074 Würzburg

 

Tel.:0931 88065060
Fax:0931 88065062

 

info@viefhaus-immobilien.de

 

Whatsapp Instagram LinkedIn Facebook X Youtube