Wir freuen uns auf Ihren Anruf
0931 88065060

Logo Viefhaus

Unsere Angebote aus dem Bereich Verkauf

‹ zurück zur Übersicht

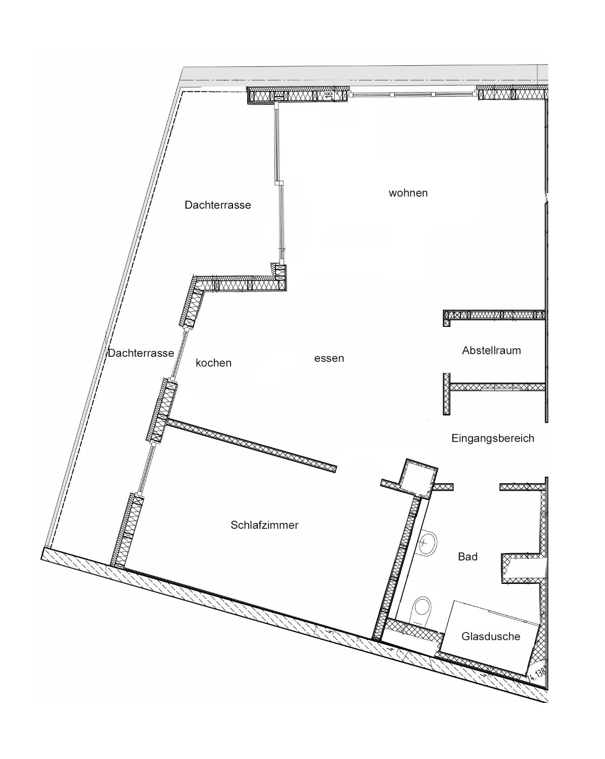
Penthouse über den Dächern der Stadt – Aufstockung 2014, ca. 70 m², Dachterrasse, Fernblick zur Festung, 2 Stellplätze

97072 Würzburg Eine vollständige Adresse erhalten Sie
nach dem Absenden Ihrer Anfrage.
Anfrage senden Viefhaus Immobilien Würzburg
+ weitere Bilder
  • ca. 70 m²
  • 2
  • Etagenheizung
  • Luft-Wasser-Wärmepumpe
  • Einbauküche
  • mit Anschluss für Waschmaschinen, mit Dusche
  • Abstellraum
  • nein
  • ja
  • nein
  • Süd
  • Kunststoff
  • ja
  • Kunststoff
  • ja
  • 07.01.2015
  • 06.01.2025
  • nach Bedarf
  • ca. 21 kWh/(m²a)
  • 480.000,00 EUR
  • ca. 180,00 EUR
  • 15.600,00 EUR
  • ja

 

Beschreibung im Detail

Dieses moderne Penthouse vereint stilvolles Wohnen mit einem einzigartigen Ausblick über die Dächer Würzburgs.
Die 2014 errichtete Dachgeschosswohnung entstand im Zuge einer hochwertigen Aufstockung eines gepflegten Altbaus aus dem Jahr 1914 und bietet eine Wohnfläche von rund 70 m².

Der offen gestaltete Wohn- und Essbereich mit integrierter Küche überzeugt durch seine Großzügigkeit, Helligkeit und den direkten Zugang zur weitläufigen Dachterrasse. Hier genießen Sie Sonne von früh bis spät – mit herrlichem Fernblick bis zur Festung Marienberg.

Die moderne Ausstattung umfasst eine Fußbodenheizung in allen Räumen, betrieben über eine effiziente Wärmepumpe, zeitlose Bodenbeläge, glatte Wände sowie eine neuwertige Einbauküche. Das Tageslichtbad ist elegant gefliest und verfügt über eine große Glasdusche sowie moderne Sanitärobjekte und Platz für Waschmaschine und Trockner.
Ein separater Abstellraum innerhalb der Wohnung bietet zusätzlichen Stauraum.

Zur Wohnung gehören ein Kellerabteil und zwei Außenstellplätze im Innenhof, die über ein Sondernutzungsrecht fest zugeordnet sind. Das Wohnhaus wird durch eine professionelle Hausverwaltung betreut; Rücklagen und Instandhaltungsmanagement sind solide aufgebaut.

Ein Objekt, das durch seine Lage, den weiten Blick und die hochwertige Bauausführung überzeugt – ideal für Eigennutzer mit Anspruch ebenso wie für Kapitalanleger, die Wert auf eine nachhaltige Immobilie legen.

Bitte senden Sie uns Ihre Anfrage schriftlich über das Kontaktformular und geben Sie dabei Ihre vollständigen Kontaktdaten sowie eine Telefonnummer an.
Nur so können wir Ihnen ein vollständiges Exposé mit allen Unterlagen zur Verfügung stellen und einen individuellen Besichtigungstermin abstimmen.

Beschreibung der Lage

Die Immobilie befindet sich in bevorzugter Wohnlage im südlichen Innenstadtbereich von Würzburg, in direkter Nachbarschaft zu Frauenland und Sanderau.
Hier verbindet sich zentrumsnahes Wohnen mit hoher Lebensqualität: Einkaufsmöglichkeiten, Cafés, Apotheken und Ärzte befinden sich in fußläufiger Entfernung. Die Würzburger Innenstadt und der Main sind in nur wenigen Minuten erreichbar, ebenso die Universität und die Kliniken.

Dank der hervorragenden Anbindung an den öffentlichen Nahverkehr (Straßenbahn und Bus) sowie kurze Wege zur B 19 und A 3 ist die Lage auch für Berufspendler attraktiv. Gleichzeitig bietet die erhöhte Position des Hauses Ruhe und Privatsphäre – kombiniert mit einem beeindruckenden Blick über die Dächer Würzburgs bis hin zur Festung.

Die Umgebung zeichnet sich durch charmante Altbauten, gepflegte Grünanlagen und eine gewachsene Nachbarschaft aus. Hier wohnt man ruhig, zentral und dennoch mitten im Leben – eine der begehrtesten Wohnlagen der Stadt.

Details zur Provision

Der Käufer zahlt an die Viefhaus Immobilien, Inhaber Sebastian Viefhaus, eine Maklerprovision in Höhe von 3,57 % inkl. der gesetzlichen Mehrwertsteuer, fällig und verdient mit Abschluss des notariellen Kaufvertrages.
Mit dem Verkäufer wurde ein provisionspflichtiger Maklervertrag in gleicher Höhe abgeschlossen.

Weitere Informationen

Alle Angaben basieren auf Informationen des Eigentümers und wurden mit größter Sorgfalt zusammengestellt. Für deren Richtigkeit, Vollständigkeit und Aktualität wird keine Haftung übernommen. Grundrisse und Flächenangaben sind nicht maßstabsgetreu; Abweichungen sind möglich. Maßgeblich sind die Vereinbarungen im notariellen Kaufvertrag.
Unsere Allgemeinen Geschäftsbedingungen (AGB) sind Angebotsgrundlage. Zwischenverkauf vorbehalten.

Ihr Ansprechpartner

 

Sebastian Viefhaus

Tel.:0931-88065060
Fax:0931-88065062

E-Mail:sv@viefhaus-immobilien.de

Anfrage senden

 

Mit einem * gekennzeichnete Felder sind Pflichtangaben.

Leistungen für Immobilienkäufer

Egal, ob Sie eine Eigentumswohnung, ein Einfamilienhaus oder ein Grundstück kaufen möchten – wir sind Ihr kompetenter Partner beim Kauf von Immobilien in Würzburg und der Region Mainfranken!

 

Mit einem großen Portfolio und besten Kontakten finden wir garantiert die richtige Immobilie für Sie.

Auch beim Verkauf Ihrer Immobilie stehen wir Ihnen mit Kompetenz und Engagement zur Seite. Gerne übernehmen wir die komplette Abwicklung für Sie: wir schätzen den Wert Ihrer Immobilie, bewerben das Objekt, suchen den passenden Käufer und bereiten alle nötigen Unterlagen vor.

 

Sprechen Sie uns an – wir beraten Sie gerne!

Viefhaus Immobilien
Fichtestraße 10
97074 Würzburg

 

Tel.:0931 88065060
Fax:0931 88065062

 

info@viefhaus-immobilien.de

 

Facebook Twitter